ФОТО СО СТРОЙКИ
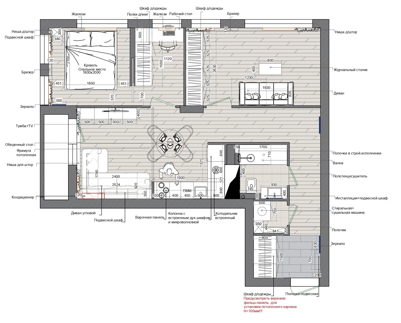
ПЛАНИРОВОЧНОЕ РЕШЕНИЕ
+7 926 724 57 07
+ 7 995 783 12 86





viki.novochenko@gmail.com
https://www.instagram.com/vika.novochenko